Listing provided courtesy of Nicholas Abbadessa of RE/MAX MASTERS REALTY. Last updated . Listing information © 2025 Sandicor.
Asking Price: $980,000 | Active
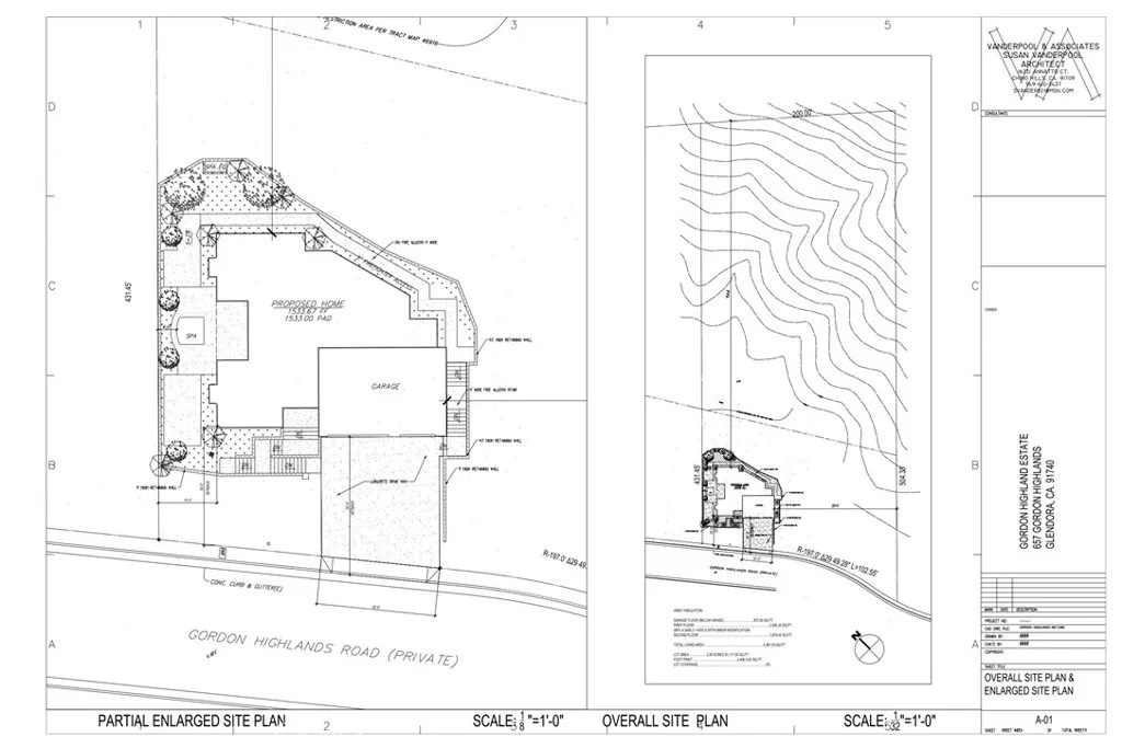
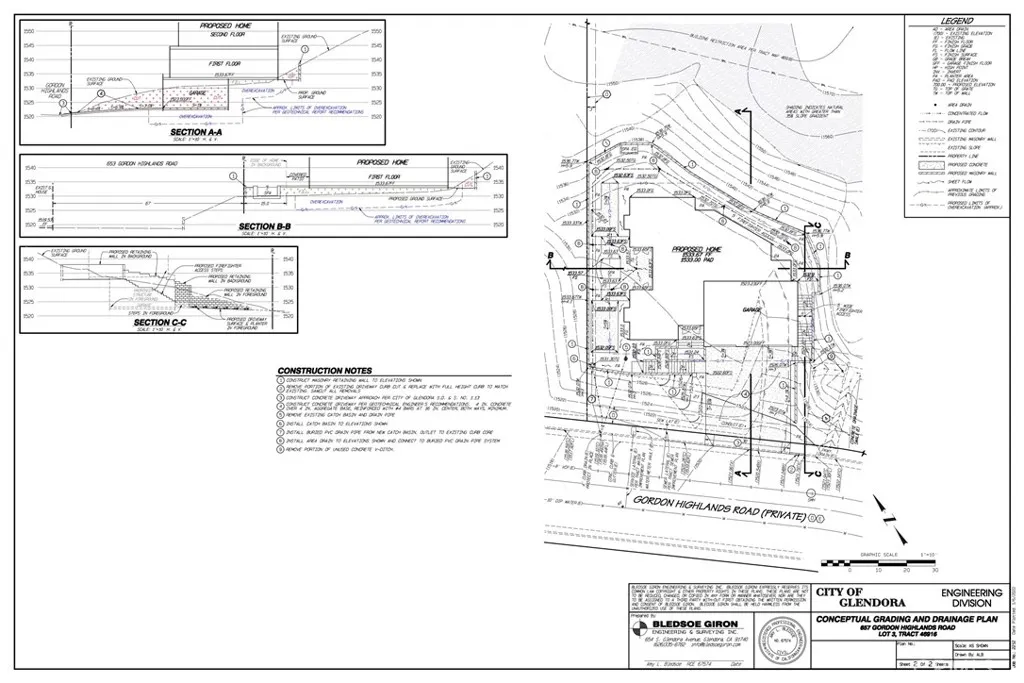
657 Gordon Highlands, Glendora CA 91741
Community: Gordon Highlands
This Lot property was built in and is priced at $980,000. Please see the additional details below.
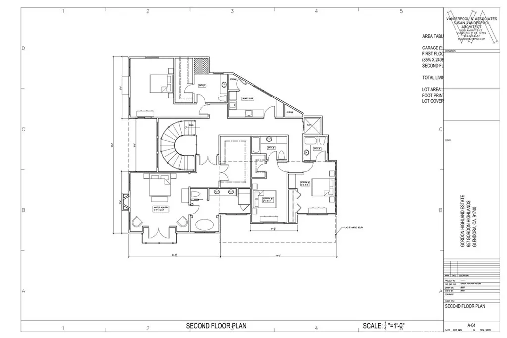
BUILD-READY | PLANS APPROVED. A rare opportunity to build your dream estate on one of the last true view lots in Glendoras ultra-exclusive Gordon Highlands Estates. This gently sloped, 2.09-acre parcel comes fully entitled with approved plans for a custom 4,381 sq ft residence plus an attached 872 sq ft garage, designed to maximize the panoramic vistas. Perched on an elevated hillside within the prestigious guard-gated community, this lot delivers unobstructed views of city lights and the San Gabriel Mountainsa setting rarely duplicated. Gordon Highlands offers 24-hour security, a staffed entry gate, and streets lined with multi-million-dollar custom estates, creating a sanctuary of privacy, elegance, and architectural distinction. As you wind through oak-lined roads and meticulously manicured grounds, the community evokes the feel of a timeless foothill retreatjust minutes from Glendoras vibrant downtown, local hiking trails, and top-rated schools. Imagine waking up to sunrise over the mountains, hosting sunset gatherings from your future terrace, or simply enjoying daily life immersed in quiet luxury where nature and refinement meet.
































