Listing provided courtesy of Jonathan Minerick of Homecoin.com. Last updated . Listing information © 2025 Sandicor.
Asking Price: $625,000 | Active
5164 Romaine Street, Los Angeles CA 90029
Community:
This Residential property was built in 1910 and is priced at $625,000. Please see the additional details below.
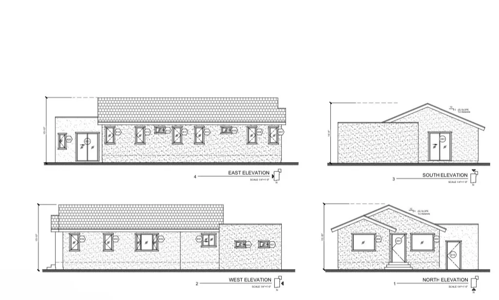
MAJOR FIXER ALERT!! Calling all investors, developers, and savvy homebuyers check out this INCREDIBLE Hollywood opportunity! Welcome to 5164 Romaine, a fantastic fixer and rehab project located in the heart of Hollywood. This complete fixer is ready to be reimagined and brought back to life! Create your DREAM HOME, execute a FIX-and-FLIP, transform it into an Airbnb/VACATION RENTAL, or hold as a RENTAL INVESTMENT for your portfoliothe possibilities are endless. Nearby homes are consistently selling for $1.1M+, offering significant upside potential. The property even features your very own abundant fruit orchard with mature Persimmon, Guava, and Avocado trees already bearing fruit for future owners. Zoning: LAR3, TOC Tier 2. The existing layout features 8 bedrooms and 2 baths (see current floor plan). However, architectural plans have already been completed and city-approved to convert the property into a 3BD / 2BA main house plus a 1BD / 1BA ADUtwo separate units, which may be ideal for multi-generational living, dual rental income-producing investment units, or a live-in-one, rent-the-other strategy. Also, it offers EXCEPTIONAL potential for Airbnb or short-term vacation rentals near Hollywoods most DESIRABLE tourist destinations, as well as other multiple development possibilities. The time-consuming, hard part is already DONE! Architectural and city-approved plans have been COMPLETED, including pulled permits, mean this project is effectively shovel ready. FOR YOUR BENEFIT, instantly save months of time and thousands in architectural fees, holding costs, work completed,







































































