Listing provided courtesy of Jensen Lossing of Compass. Last updated . Listing information © 2025 Sandicor.
Asking Price: $1,595,000 | Active
3898 Hayfield, San Luis Obispo CA 93401
Community: Righetti Ranch
This Residential property was built in 2021 and is priced at $1,595,000. Please see the additional details below.
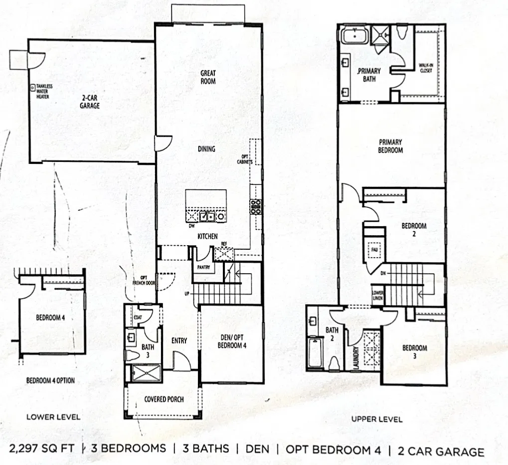
This stunning 3-bedroom + den (easily converted to a fourth bedroom), 3-bathroom home offers the perfect blend of modern comfort and charm in the highly desirable Righetti Ranch community. Discover a thoughtfully designed layout with an open-concept living space, ideal for entertaining or relaxing with family. The versatile den offers flexibility for a home office, guest room, or creative studio. It is located on the first floor with access to a full bath. The beautiful backyard features low-maintenance Timber Tech composite decking, built in fire pit and benches perfect for lounging with a morning coffee or evening gatherings. Best of all, this home backs to the future Righetti Ranch community park, offering a unique opportunity to enjoy peaceful views and the promise of green space, sports fields, bike trail, and more, just beyond your fence. The home includes rooftop solar and an EV charger to keep those energy and gas bills lower. Located minutes from downtown San Luis Obispo, hiking trails, beaches, and top-rated schools, this home combines location, lifestyle, and long-term value. Dont miss your chance to be part of one of SLOs premier communities. Schedule your private showing today!





















