Listing provided courtesy of Yossmira Hernandez of First Family Homes. Last updated . Listing information © 2025 Sandicor.
Asking Price: $3,595,000 | Active
1128 Ardmore, Los Angeles CA 90006
Community:
This ResidentialIncome property was built in and is priced at $3,595,000. Please see the additional details below.
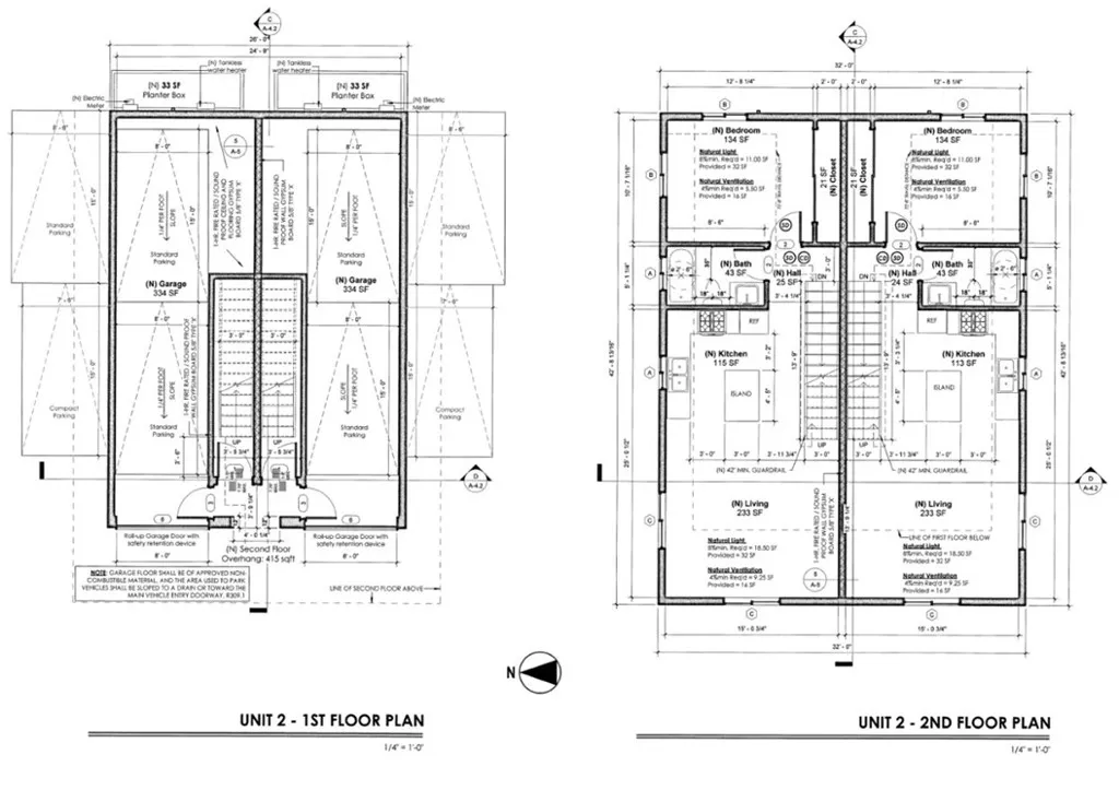
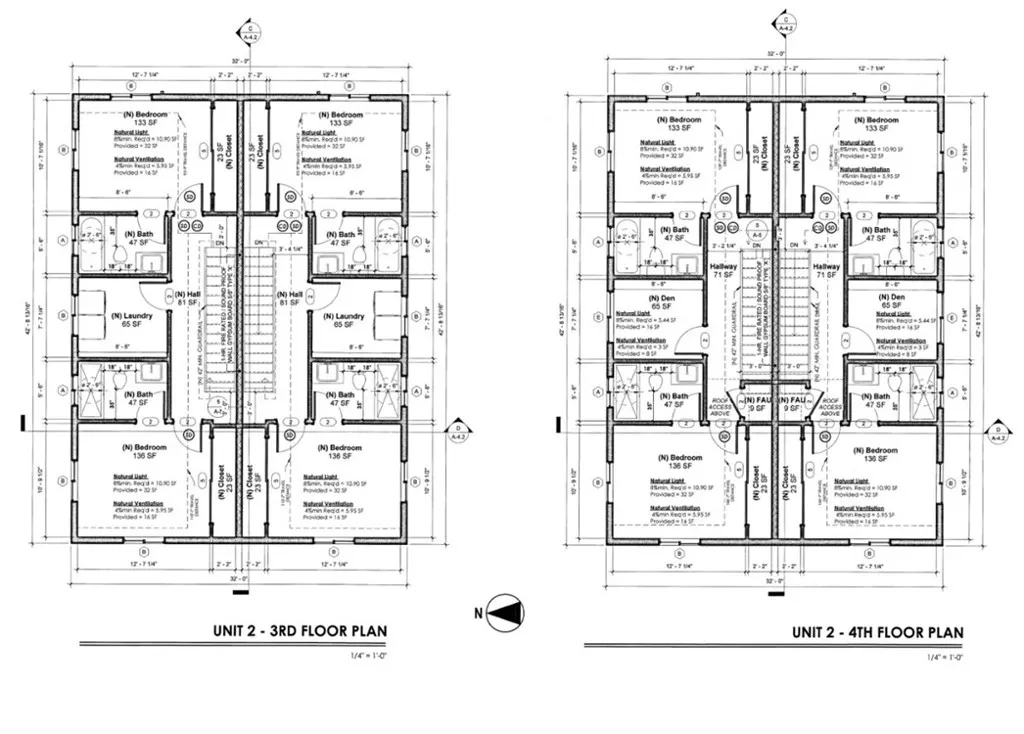
1128, 1128 1/2, 1130 & 1130 1/2 S Ardmore Ave, Los Angeles CA 90006 Appraised at:$3,595,000 Property is fully leased with a great Cap rate of 5.865%. Presenting a Clean Modern look BRAND NEW CONSTRUCTION Multi-family Investment 4 Unit Property. Propertys breakdown is the following: 4Plex consists of 2 Duplexes; total of 4units Mix of (2) 5 bedrooms & 5 bathrooms & (2) 5 bedrooms & 6 bathrooms Total of 20 Bedrooms and 22 Baths Total approx. Living sqft: 6,880 ( Not including 870 sqft Garage) Total approx. Lot sqft: 5,903 Unit 1 sqft: 1,652.5 Unit 2 sqft: 1,652.5 Unit 3 sqft: 2,222.5 Unit 4 sqft: 2,222.5 Note:Property is fully leased with a great Cap rate of 5.865%. All units are Quad-Level & separately metered for each utility service. This project is located in a hot rental area. Location, location, location! Multi family units are in high demand in this area. This project being Brand New Construction, these units are easy to lease out. Property has little to no maintenance; super convenient for the owner. Buyer(s) to independently verify all information on this listing. Listing agent is not liable for any information that turns out incorrect. The accuracy of all information, regardless of source, including but not limited to square footages, lot sizes, income, and expenses, is deemed reliable but not guaranteed.
































