Listing provided courtesy of Ashrif Hammad of COMPASS. Last updated . Listing information © 2025 Sandicor.
Asking Price: $1,399,000 | Active
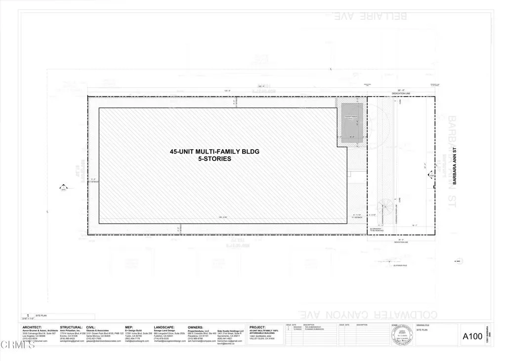
12801 Barbara Ann, North Hollywood CA 91605
Community:
This Lot property was built in and is priced at $1,399,000. Please see the additional details below.
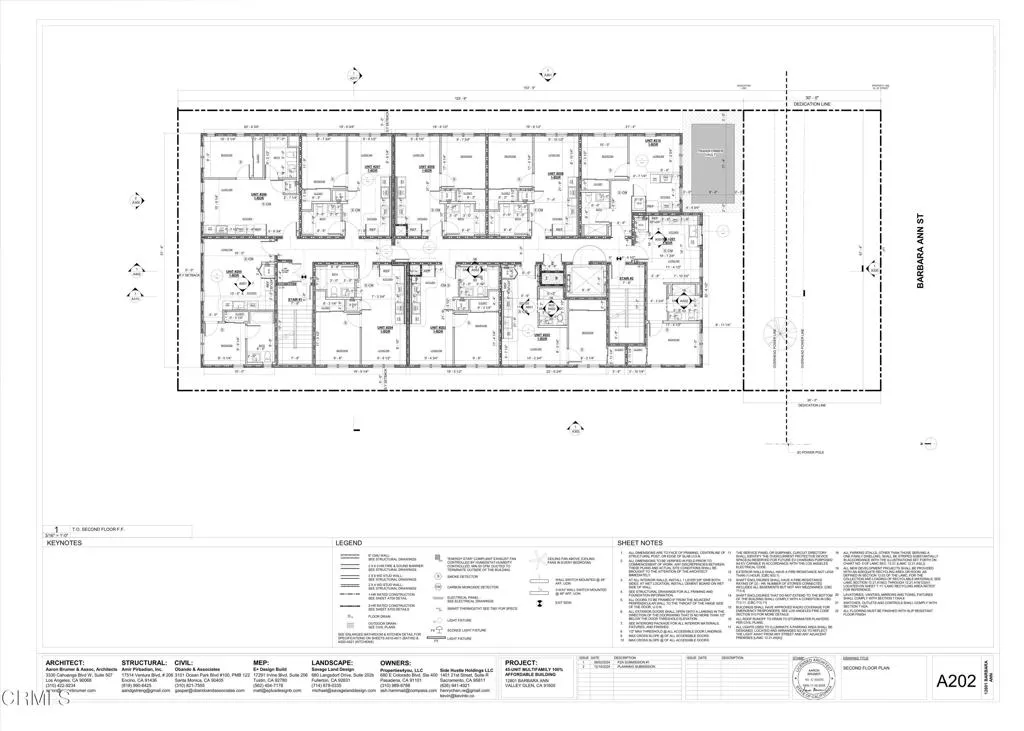
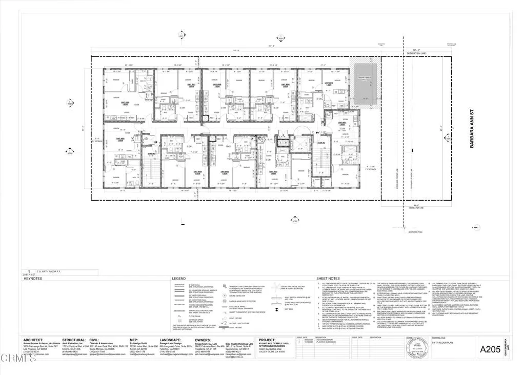
12801 Barbara Ann St, Valley Glen, CA 91605New Affordable Housing Development Opportunity - To be sold with RTI PlansShovel-ready project in Valley Glen featuring 45 units:43 one-bedrooms1 studio1 three-bedroom replacement unitRTI plans and covenant available upon request. Site also offers potential for two future ADUs.A rare chance to acquire a fully entitled, ready-to-build affordable housing development in a strong rental market.













