Listing provided courtesy of Jonathan Brier of PLATINUM STAR PROPERTIES. Last updated . Listing information © 2025 Sandicor.
Asking Price: $530,000 | Active
2065 Vista Palizada, Palm Springs CA 92262
Community: Desert Palisades
This Lot property was built in and is priced at $530,000. Please see the additional details below.
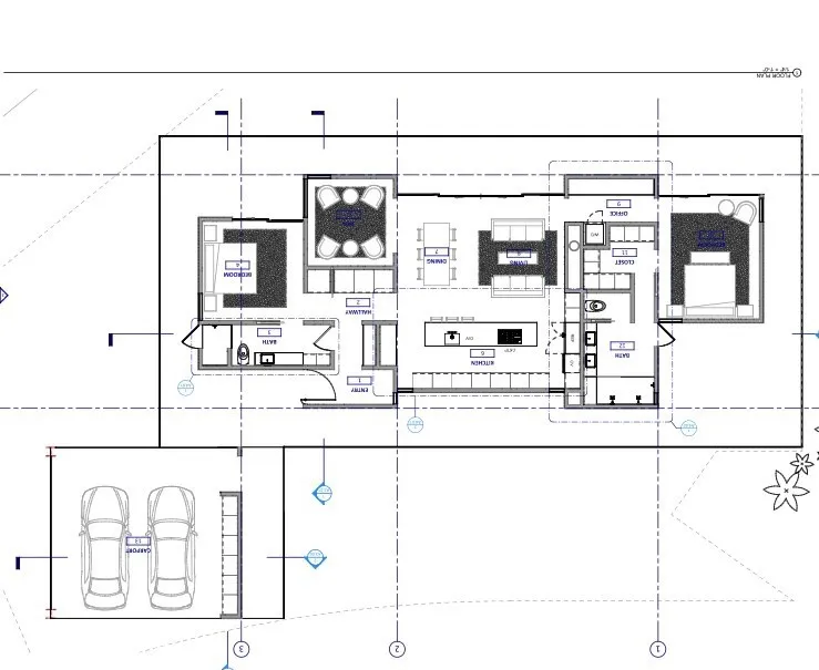
Perched in the prestigious gated community of Desert Palisades, The Flume House (Lot 68) presents a rare opportunity to build your dream home in one of Palm Springs most architecturally significant enclaves. This .41-acre homesite offers panoramic, unobstructed southwest views capturing dramatic sunsets, rugged mountain silhouettes, and twinkling city lights below. The property includes fully completed architectural design and survey work, saving you time and expense in the pre-construction process. Set amidst modernist masterpieces, this homesite is ideal for those who value both privacy and visual inspiration. With its elevated position and natural desert terrain, The Flume House is ready to accommodate a striking custom residence that blends seamlessly into its surroundings. Along the vivid, sun-drenched hillsides of Chino Canyon, Desert Palisades is artfully crafting the next chapter in the story of Palm Springs, melding its rich, unmistakable architectural heritage with extraordinary, forward-thinking design vision. Just minutes from downtown Palm Springs, Desert Palisades is where bold architecture meets raw desert beautyoffering a secure, serene lifestyle in a timeless setting.




















