Listing provided courtesy of Javin Hope of The Agency. Last updated . Listing information © 2025 Sandicor.
Asking Price: $1,199,900 | Active
Bush St, San Diego CA 92103
Community: Mission Hills
This Lot property was built in and is priced at $1,199,900. Please see the additional details below.
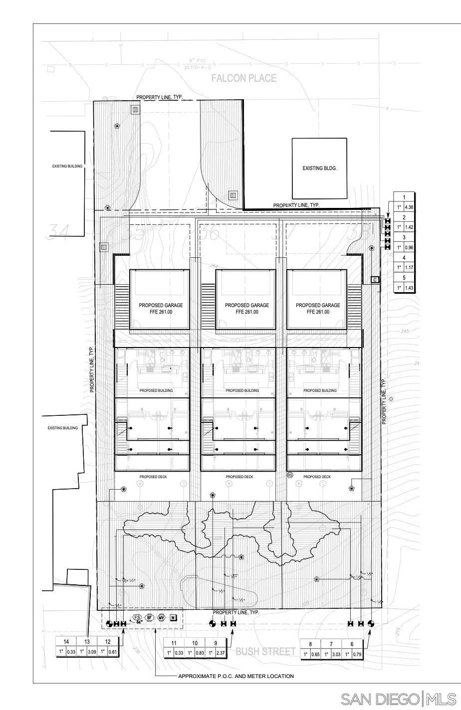
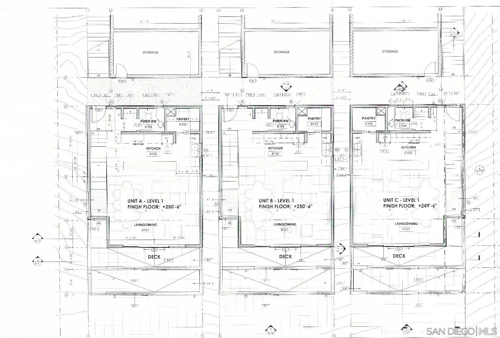
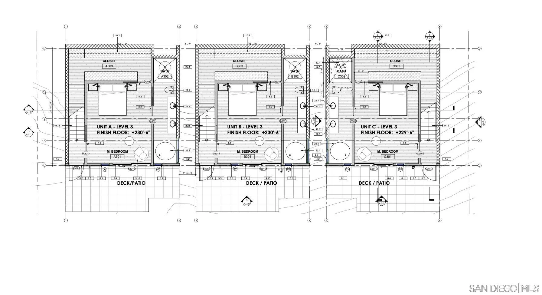
Mission Hills, San Diego, a fantastic development opportunity, especially given its location and potential for stunning views. Here are some key points and considerations for potential buyers or developers: Location and Neighborhood: Mission Hills is known for its historic charm, scenic views, and vibrant community. Its proximity to Downtown San Diego and other urban areas makes it a desirable location. Development Potential: The property offers the opportunity to build 3-6 three-story townhomes, and potentially more, depending on the revised plans. The fact that the lot can accommodate multiple units is a significant advantage for developers looking to maximize their investment. Architectural Plans: While the original architectural plans by Safdie Rabines Architects have expired, the fact that the architects are open to revisiting them provides flexibility for potential buyers. Developing new plans that take advantage of the views and the unique characteristics of the neighborhood could be an exciting prospect. Zoning and Regulations: The zoning designation of MCCPD-MR3000 suggests that the property is zoned for multi-residential development, which aligns with the proposed townhome project. Market and Demand: Understanding the demand for housing in Mission Hills and the broader San Diego area is crucial for assessing the feasibility and potential profitability of project. Overall, this Mission Hills property presents an exciting opportunity for developers to create a unique desirable residential development that capitalizes on the neighborhoods charm!
















